2025 - 2027 - Erweiterung der Mädchenschule Lukuledi auf 5 Klassen
Bischof Filbert Mhasi hat 2019–2024 in Zusammenarbeit mit «masanka.ch» eine Schule aufgebaut, die perfekt angelaufen ist und jetzt erweitert wird. Wir planen den Bau eines Gebäudes mit 100 Schlafplätzen für die Mädchen.
Die Kosten für das Gebäude belaufen sich auf CHF 32’500.- , was 99 Mio. Tansania Shilling entspricht.
Wir haben im Oktober 2025 die «Arnold Cotey» Sekundarschule für Mädchen in Lukuledi besucht und waren begeistert von der ausgezeichneten Stimmung an diesem wunderbaren Ort. Rund um den Hof mit grossen, Schatten spendenden Bäumen sind die Schulräume und Dormitories angeordnet, umgeben von vielen Pflanzen in Töpfen und Beeten. Die Räume und Aussenanlagen sind sehr sauber und gepflegt. Die Schülerinnen sind glücklich und schätzen die sichere und ruhige Umgebung, was sich positiv auf die Leistung auswirkt. Bei den letzten regionalen Prüfungen haben die zweiten Klassen sehr gut abgeschnitten und Bischof Filbert hofft auf ebenso gute Ergebnisse am «National Exam» im November.
Die Mädchen der Vorbereitungsklasse haben die Eintrittsprüfung bereits bestanden und werden ab Januar die erste Stufe besuchen. Der Schulraum und die Schlafräume sind bereits jetzt sehr knapp und im nächsten Herbst werden wieder 50-60 neue Schülerinnen erwartet. Deswegen planen wir den Bau eines weiteren Gebäudes mit 100 Schlafplätzen für die Mädchen.
Die Kosten für das Gebäude belaufen sich auf CHF 32’500.- , was 99 Mio. Tansania Shilling entspricht.
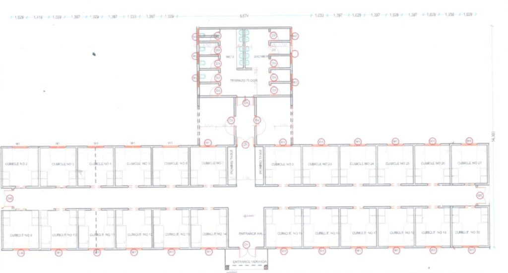
In diesem Betrag inbegriffen sind Fundationen, Wände, Dachkonstruktion und Wellblechbedeckung, Raumdecken innen, Türen, Fenster, Maler- und Gipserarbeiten, elektrische Installationen und sanitäre Einrichtungen.
Wir haben den Kostenvoranschlag geprüft. Die beanstandeten Punkte wurden korrigiert.
Der Bauplatz liegt unmittelbar neben dem Speisesaal.
Die finanziellen Transaktionen erfolgen in Etappen jeweils nach dokumentiertem Zwischenstand. So haben wir eine lückenlose Kontrolle über die Ausgaben. Da alle Mitglieder von «masanka.ch» ehrenamtlich arbeiten und die Spesen selber bezahlen, entstehen keine Nebenkosten. Jeder Franken wird genau dort in Lukuledi investiert.
Wir sind sehr stolz auf dieses wunderbare Projekt. Vielen Dank für Ihre Unterstützung
